$195,000

40 Cumberland Drive, Bluffton, SC 29910

MLS # 448746

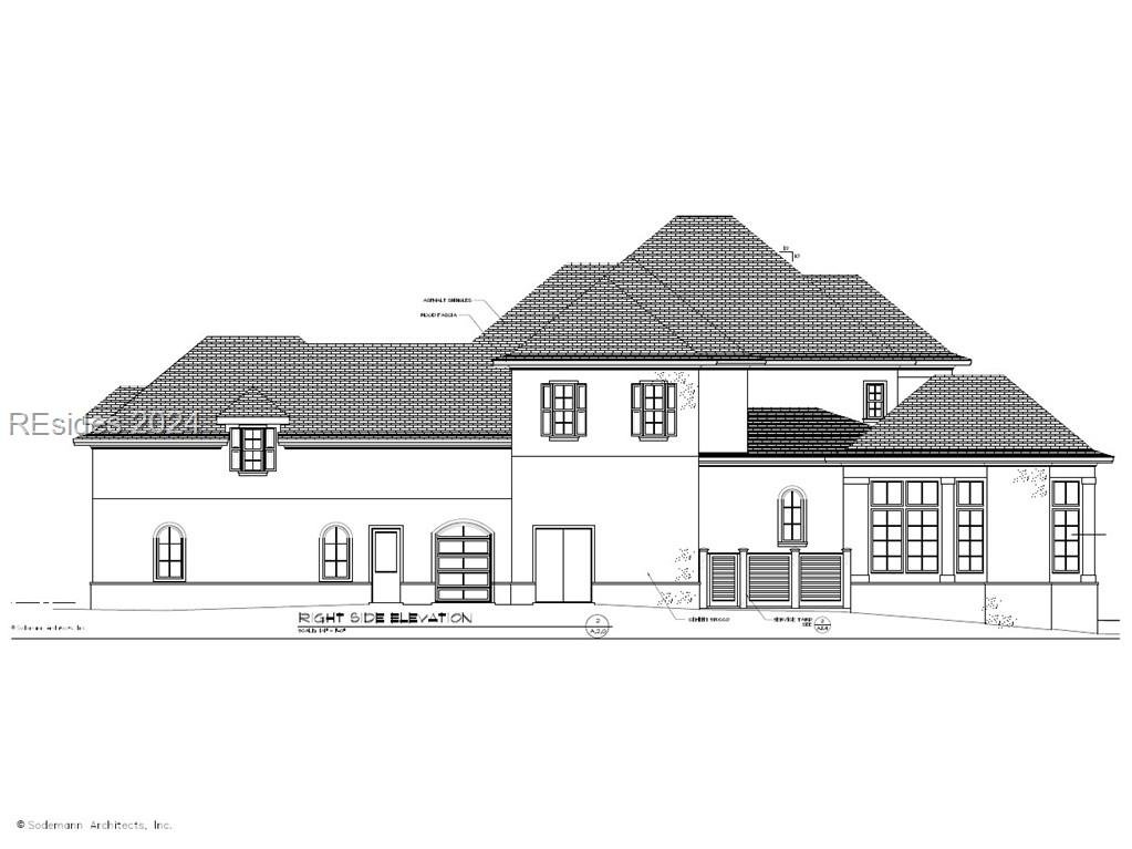
This Extraordinary large lot is located in the exclusive Belfair gated community. Plans are available for a 5,800 sq.ft home, complete with landscaping that have already been approved by the ARB and fees have been paid. This plans include five bedrooms, six and-a-half bathrooms, a three car garage plus a golf cart garage. Enjoy the outdoor kitchen and screened in living area. Here is your chance to own new construction in the Lowcountry, also known as paradise!

Approved plans include:

5 Beds

6.5 Baths

5,800 Sq.ft

More Details Below…

General


Property Details

Subtype

Land / Lot

Lot Size

.92

Area

Belfair

View

Golf, Wooded

County

Beaufort

Golf Course(s)

18-Hole, 2 Courses

Road Type

2 Lane Road, Paved Road

Interested?

Listing Agent - Frederick Hartnett

SEND MESSAGE
  • (Regarding approved plans)

    Bedrooms

    5

    Bathrooms

    6.5

  • (Regarding approved plans)

    Exterior Features

    Outdoor Kitchen, Screened Living Area

    Pool Description

    Community

    Amenities

    Bocce Courts, Clubhouse, Community Pool, Dog Park, Pavilion, Restaurant(s), Golf Privileges, Pickle Ball Court, Leisure Trails, Security Gate & Guard, Tennis Court, Fitness Center

    Parking

    Three Car Garage, Golf Cart Garage

  • Property Type

    Land / Lot

    Property Subtype

    Single Family Residence

Location

 

40 Cumberland Drive, Bluffton, SC 29910

Questions? Let us help you find exactly what you’re looking for!

7 Palmetto Way
P.O. Box 1188
Bluffton, SC 29910

(843) 815-6001

hhres@lambuthgroup.com